Villa singola in vendita

Trentola-Ducenta, Via degli Ulivi
€ 400.000
5 locali 5 locali
287 Mq 287 Mq
3 bagni 3 bagni

Villa singola in vendita

Trentola-Ducenta, Via degli Ulivi

Descrizione annuncio

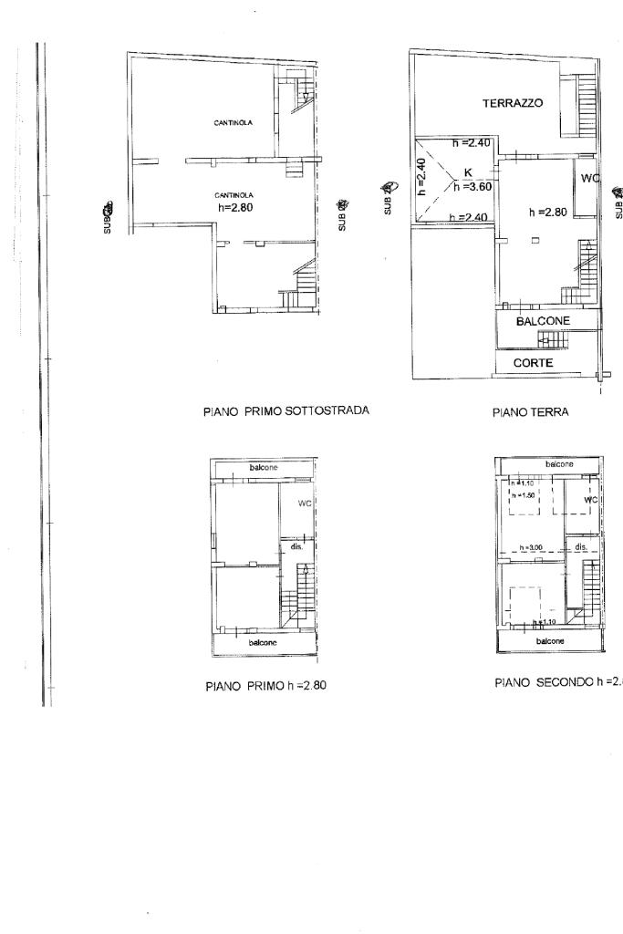
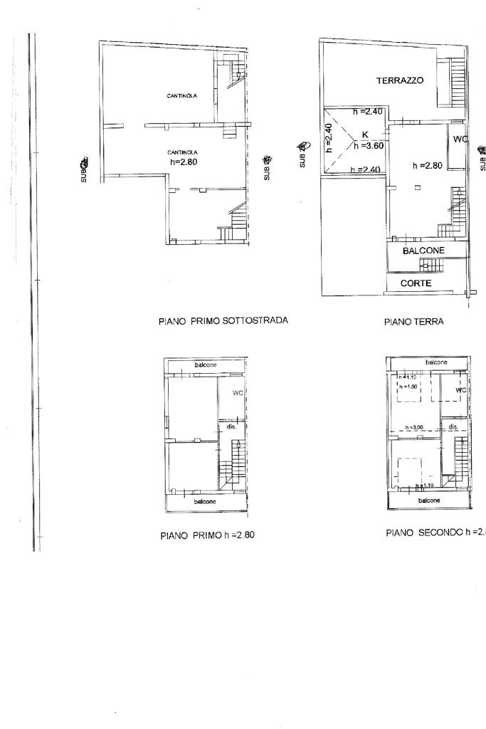
Villa Singola in Contesto Signorile con Spazi Esclusivi

In un elegante viale privato, all'interno di un contesto signorile e riservato, proponiamo in vendita una splendida villa singola disposta su più livelli, caratterizzata da ampi spazi interni ed esterni, finiture di pregio e ambienti luminosi. Al piano terra si accede a un'accogliente zona giorno composta da un ampio salone con camino, una cucina abitabile, un bagno di servizio e una comoda porta secondaria che conduce alla cantina. Completa il livello un meraviglioso terrazzo riservato, ideale per momenti di relax o convivialità all’aperto. Al primo piano si sviluppa la zona notte con due camere da letto, ciascuna servita da un balcone esclusivo e un bagno al servizio del piano, garantendo comfort e privacy. Il secondo piano, leggermente mansardato, ospita altre due camere da letto e un ulteriore bagno, anch’esse con accesso a balconi riservati. Scendendo attraverso la porta di servizio si accede alla spaziosa cantina, collegata direttamente a un ampio garage che consente di parcheggiare comodamente più veicoli. Completa la proprietà un posto auto condominiale. Questa villa rappresenta la soluzione ideale per chi cerca indipendenza, tranquillità e comfort in un ambiente di prestigio

Mostra tutto

Nelle vicinanze

Trasporto pubblico Trasporto pubblico
Aversa Centro
Aversa Centro
2,3 Km
Aversa Ippodromo
Aversa Ippodromo
3,0 Km
San Marcellino-Frignano
San Marcellino-Frignano
1,8 Km
stazione di Aversa
stazione di Aversa
2,7 Km
Trasporto pubblico
2,4 Km
Scuole Scuole
Liceo Scientifico Enrico Fermi
490 m
C. Andreozzi
590 m
O. Conti
640 m
Istituto Comprensivo Statale di Lusciano
910 m
Scuole
990 m
Farmacia Farmacia
Farmacia
1,4 Km
Farmacia Dei Platani
1,6 Km
Parafarmacia Conad
1,9 Km
Farmacia Pisani
2,2 Km
Farmacia Lauro
2,7 Km
Supermercati Supermercati
Markant
780 m
Cremeria del Borgo
990 m
La Maddalena
1,2 Km
MD San Marcellino
1,8 Km
Conad
1,9 Km
Negozi Negozi
Blue Moon
970 m
Petrella
1,3 Km
Prenatal
1,5 Km
Frankie Shoes
2,0 Km
Personaggi couture
2,3 Km
Bar Bar
Bar Gallery
340 m
Shark's Cafè
620 m
Dilemma
710 m
Bar
760 m
Barbato Paolo
790 m
Ristoranti Ristoranti
Pedros
610 m
La Bella Napoli
630 m
Pepp ò Russ
660 m
Dilemma
720 m
Quarantuno
750 m
Mostra tutto

Caratteristiche

Rif.:
61128925
Piano:
3 di 3 (Piano su più livelli)
Box:
1
Posti auto:
1
Balconi:
6
Terrazzi:
1
Mostra tutto
Prezzo Prezzo
€ 400.000
Rata mutuo Rata mutuo
€ 1.869 / mese
Spese annue Spese annue
€ 180
Proponi il tuo prezzoProponi il tuo prezzo
Immobile valutato con T·Valuta

Classe Energetica

F
F
F
F
F
F
F
F
F
EP globale non rinnovabile:
200.00 kW h/m² anno
EP globale rinnovabile:
200.00 kW h/m² anno
EP invernale del fabbricato:
EP estiva del fabbricato:
Anno di costruzione:
2005
Riscaldamento:
Autonomo
Tipo impianto:
A radiatori
Tipo alimentazione:
Metano

Ti interessa visionare l'immobile?

Fissa un appuntamento  Fissa un appuntamento

Richiedi informazioni

Clicca su Leggi per aprire l'informativa
* Questi campi sono obbligatori

Calcola il tuo mutuo

Semplice e senza impegno
Anticipo

( % )
Mutuo

( % )

pochi semplici passi

inserisci i tuoi dati
Questionario completato
Grazie per aver richiesto un appuntamento senza impegno con un nostro Consulente del Credito e Assicurativo.

Hai inserito correttamente tutti i dati necessari e a breve riceverai una e-mail con un link da convalidare per inviare i tuoi dati.
Affiliato
Intermedia Uno Srl
Via Diaz, 69 81031 Aversa (CE)

Il nostro staff


  • Emanuele Pino
    Affiliato
Via Diaz, 69 81031 Aversa (CE)
Zona: Aversa
Mostra su mappa
Orari: da LUNEDI AL VENERDI 09:00- 13:00 / 16:00-20:00 SABATO 09:00-13:00 DOMENICA CHIUSO
Affiliato
Intermedia Uno Srl
Via Diaz, 69 81031 Aversa (CE)

2026 Tecnocasa Franchising S.p.A. - P. IVA 08365160152 - Via Monte Bianco 60/A 20089 Rozzano (MI). Ogni agenzia ha un proprio titolare ed è autonoma. Privacy policy | Policy utilizzo | Cookie policy